Four de synthèse de chlorure d'hydrogène en graphite à double enveloppe d'eau
L'utilisation de graphite résistant à l'eau, ou graphite à enveloppe d'eau, permet une production efficace d'HCl. Vous pouvez ainsi garantir un contrôle précis de la température et des conditions de réaction optimales.
Numéro d'article :
SSLCommande (MOQ) :
1Paiement :
Alipay PayPal westernunion T/T L/COrigine du produit :
ChinaCouleur :
CustomizedPort d'expédition :
shanghai shenzhen guangzhouDélai de mise en œuvre :
please contact 504893184@qq.com or CP +8613696510409Emballer :
CustomizedMatériel :
GraphiteTempérature de travail :
Export≤45℃,Graphite wall≤170℃Four de synthèse de chlorure d'hydrogène en graphite à double enveloppe d'eau
Il se compose d'une enveloppe en acier, d'un couvercle de four en graphite, d'un cylindre synthétique et d'un fond de four. Il présente plusieurs avantages par rapport à un four à enveloppe en acier, notamment :
1. une longue durée de vie (généralement plus de dix ans) ;
2. pureté élevée de l'acide du produit ;
3. Des conditions de travail favorables, avec un contrôle et une gestion faciles.
Avantages du produit
Le four de synthèse de chlorure d'hydrogène en graphite à double enveloppe d'eau se distingue par une résistance exceptionnelle à la corrosion, un transfert de chaleur efficace, une régulation stable de la température et une grande durabilité. Sa structure robuste garantit un fonctionnement fiable même dans des environnements chimiques agressifs, assurant une production de HCl sûre, constante et efficace avec un minimum d'entretien.
Diagramme structurel
| Détails des pièces | |
| 1 | Port antidéflagrant |
| 2 | Sortie d'eau de refroidissement |
| 3 | Sortie de refroidissement |
| 4 | Sortie HCl |
| 5 | Cylindre synthétique en graphite |
| 6 | porte du four |
| 7 | Entrée d'eau de refroidissement |
| 8 | Miroir |
| 9 | Trois ensembles de brûleurs en verre de quartz |
| 10 | Miroir |
| 11 | Orifice de vidange |
| 12 | Sortie d'acide |
| 13 | Entrée de chlore |
| 14 | Entrée d'hydrogène |
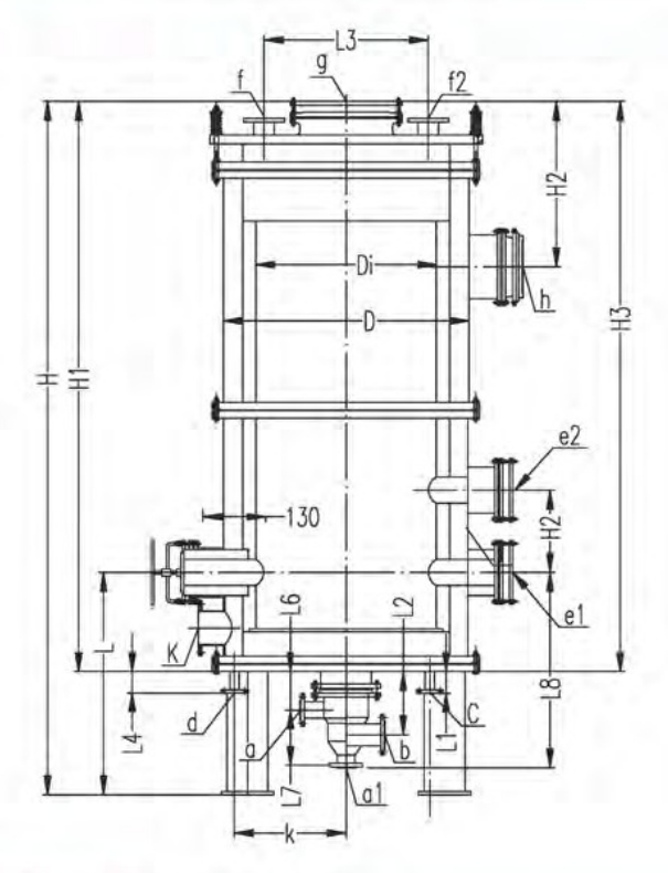
Tableau des paramètres de la buse

| Symbole | a | b | c | d | e | f | g | h | k |
| Caractéristiques | DN/D1 | DN/D1 | DN | DN | DN | DN | DN | DN/D1 | DN |
| SSL-300 | 40/125 | 40/125 | 20 | 50 | 125 | 80 | 250 | 75/180 | 40 |
| SSL-400 | 55/145 | 55/145 | 20 | 50 | 125 | 100 | 250 | 100/210 | 50 |
| SSL-500 | 70/180 | 70/180 | 20 | 50 | 125 | 125 | 250 | 125/240 | 65 |
| SSL-600 | 84/210 | 84/210 | 20 | 50 | 125 | 150 | 400 | 150/295 | 80 |
| SSL-700 | 100/210 | 100/210 | 20 | 50 | 125 | 200 | 400 | 200/350 | 100 |
| SSL-800 | 115/240 | 115/240 | 20 | 50 | 125 | 200 | 400 | 200/350 | 100 |
| SSL-900 | 115/240 | 115/240 | 20 | 50 | 125 | 200 | 400 | 250/400 | 125 |
| SSL-1000 | 115/240 | 115/240 | 20 | 50 | 125 | 200 | 400 | 250/400 | 150 |
| Ajutage norme de connexion |
HG 20593 | HG 20593 | - | HG 20593 | - | HG 20593 | - | - | HG 20593 |
| Niveau de pression MPa |
1.0 | 1.0 | - | 1.0 | - | 1.0 | - | 1.0 | 1.0 |
| Utilisation de la buse | Entrée d'hydrogène | Entrée d'hydrogène | Sortie d'acide | Orifice d'échappement | Port miroir | Sortie d'eau | Port antidéflagrant | Sortie d'hydrogène hydrogéné | Entrée d'eau de refroidissement |